2021-2023
Cumbayá, Ecuador
Diseño Arquitectónico
Valcala
2021-2023
Cumbayá, Ecuador
Architectural Design
Valcala
fotos: jose holguin
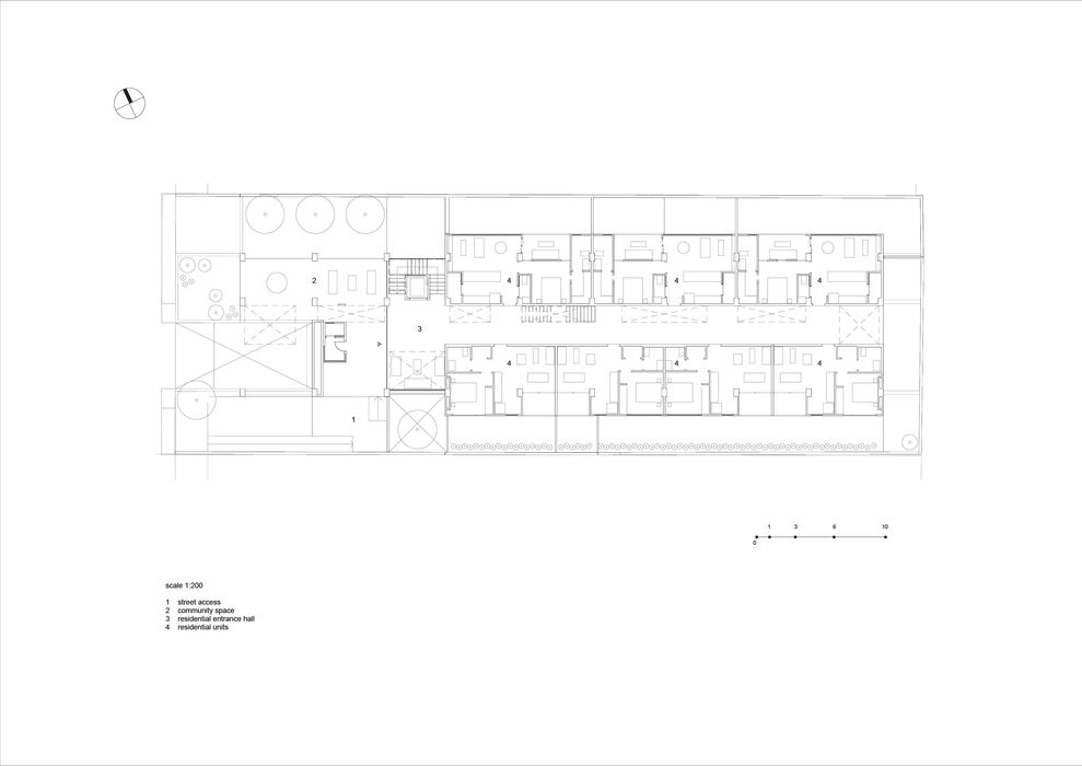
Este edificio de residencias estudiantiles combina un diseño arquitectónico moderno con una profunda integración paisajística. La vegetación forma parte esencial de la arquitectura, incorporada en balcones, corredores y áreas comunes, generando un ambiente fresco, verde y saludable. Los volúmenes rectos, los acabados sobrios y el uso estratégico de la luz natural definen su identidad contemporánea.
El proyecto fue concebido como un espacio de encuentro e interacción entre estudiantes. Sus múltiples zonas comunes, los corredores con dobles alturas y las escaleras abiertas permiten relaciones visuales, acústicas y sociales entre los diferentes niveles. Más que un edificio, se trata de un ecosistema social donde la arquitectura promueve la convivencia diaria.
This student housing building blends modern architectural design with a strong integration of landscape and greenery. Plants are not just decorative—they are architectural elements found throughout balconies, hallways, and shared spaces, creating a fresh, vibrant, and healthy atmosphere. Clean volumes, minimalist materials, and an abundance of natural light shape the building's contemporary character.
The project is designed as a social framework that fosters interaction among students. With generous communal areas, double-height corridors, and visually connected stairways, it encourages both spontaneous and intentional encounters across levels. It’s more than just a building—it’s a living social ecosystem shaped by architecture.
fotos: jose holguin
Equipo
Jose Holguin, Miguel Rueda, Mateo Grijalva, Holbeein Velasquez
Construccion: Pladeco
Team
Jose Holguin, Miguel Rueda, Mateo Grijalva, Holbeein Velasquez
Construction: Pladeco

























